Haus Kratz
2020
Studie Neubau ZFH in Oberembrach
Privat
Studie Neubau ZFH in Oberembrach
Privat
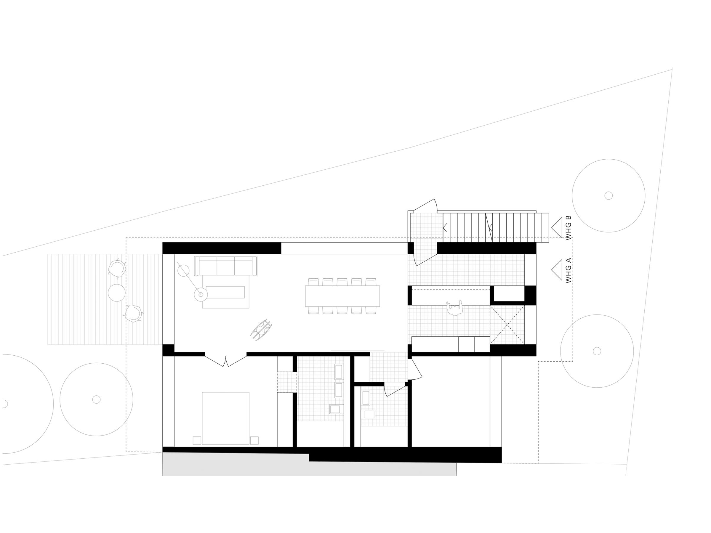
In der Kernzone in Oberembrach steht ein dreiteiliges Wohnhaus mit angebauter Scheune am Ende der Reihe. Unter Berücksichtigung der Kernzonen-Auflagen soll der Abbruch der Scheune und der Ersatzneubau eines ansprechenden Zweifamilienhauses geprüft werden. Die Abmessungen des Aussenperimeters und die Ausgestaltung der Fassaden sind durch das zu schützende Ortsbild stark reglementiert. Innerhalb dieser Vorgaben sollen die sich bietenden Möglichkeiten aufgezeigt werden.