Wohnhaus Gasometer

2020 - 2022
Ersatzneubau MFH in Zürich-Kreis 5
K5 Immobilien AG

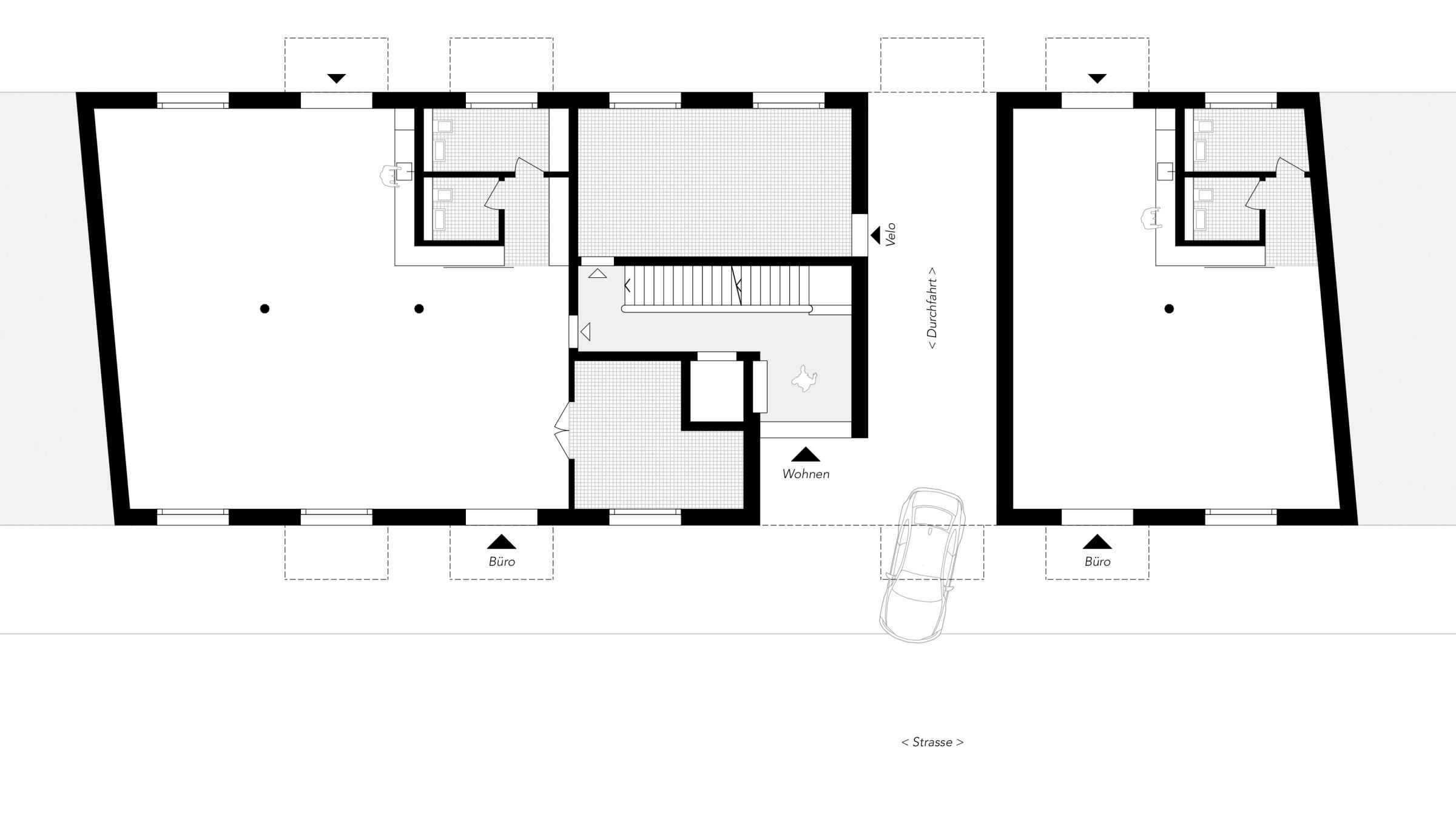
Die in die Jahre gekommene Bau- und Wohnsubstanz soll erneuert werden. Als Teil eines Blockrandes soll sich das Neubaugebäude stilgerecht in die Fassadenflucht einbinden und den quartiertypischen Charakter erhalten. Der Sockel hebt sich von der Hauptfassade ab und wird in strukturiertem Sichtbeton erstellt. Die Hauptfassade wird in Vollklinkersteinen, analog dem bestehenden Quartierkontext, gefertigt. Die untypischen Steinformate und die Verlegungsart interpretieren die gängige Bauweise in einer neuzeitigen Art und Weise. Das Gebäude beinhaltet 30 Mietwohnungen aller Grössen. Die Regelgeschoss-Grundrisse decken eine Vier- oder Achtspänner-Anordnung ab. Die oberen Geschosse sind grosszügige Duplex-Dachwohnungen und bilden die Krone des Gebäudes. Im Erdgeschoss sind Gewerbe- und Büroräumlichkeiten mit strassenseitigem Zugang eingeplant. Der rückwertige Innenhof bietet einen aussenliegenden Ruheraum für die Bewohner.