Hof "Im Gschwader"

2023
Machbarkeitstudie Erweiterung Hof "Im Geschwader" in Uster
Privat

Die Liegenschaft an der Gschwaderstrasse markiert den Auftakt des Weilers Winikon. Das bestehende Gebäude aus dem Jahr 1842 umfasst einen massiven Wohnteil und einen angegliederten Schopf-/Tennteil. Seine Stellung führt Besucher entlang der Südfassade in den Weiler. Zwei sekundäre Landwirtschaftsbauten (Stall und Schopf) stehen im rechten Winkel zum Haupthaus. Das heterogen zonierte Grundstück grenzt im Norden an die Autobahn.

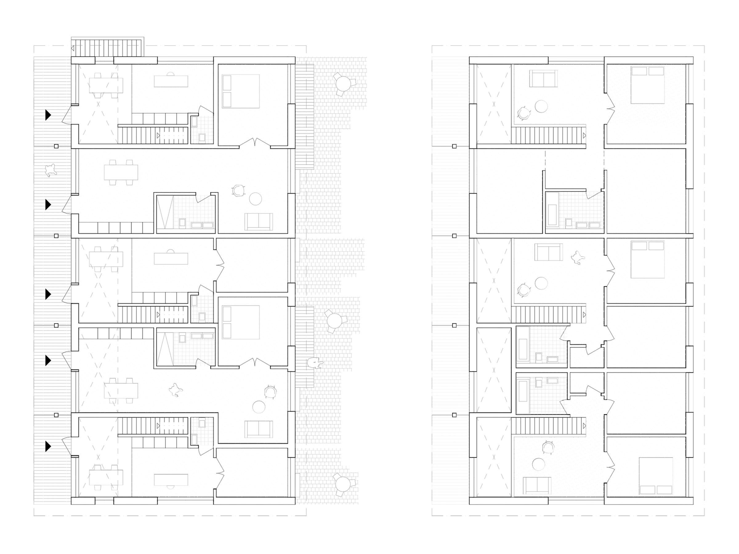
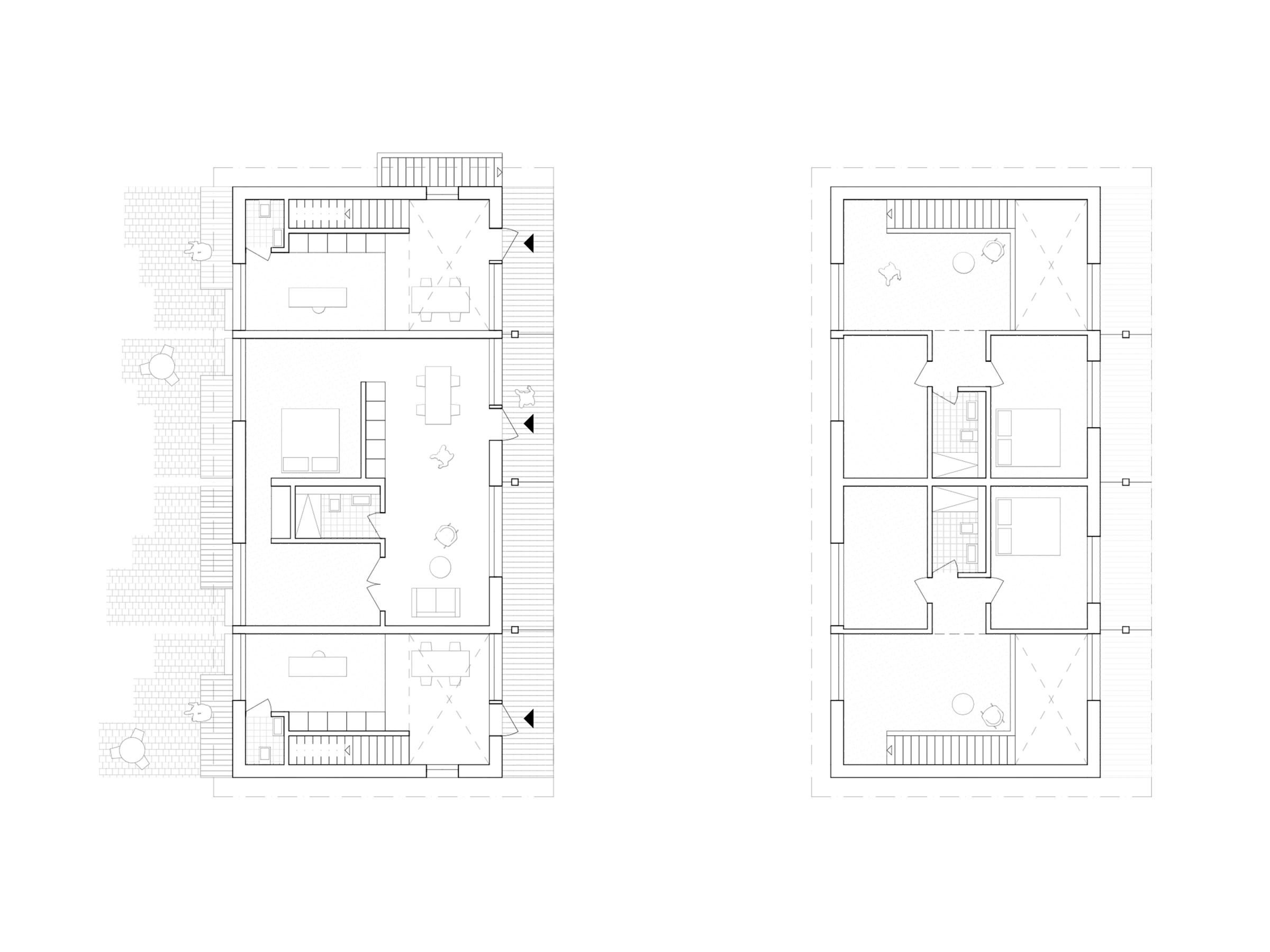
Geplant ist eine Totalsanierung des denkmalgeschützten Gebäudes mit neuen Wohnungen im Wohnteil. Der landwirtschaftliche Teil soll strukturell erhalten bleiben und Reiheneinfamilienhäuser aufnehmen, die Strassen- und Hofseite verbinden.

Die bestehenden Sekundärgebäude werden durch zwei Neubauten ersetzt, ebenfalls in Ost-West-Ausrichtung. Durch eine Abwinkelung der Gebäude im Nordteil kann baulich und volumetrisch auf die Lärmsituation reagiert werden. Die räumliche Organisation orientiert sich am Bestand: Im Norden entstehen mittelgrosse Wohnungen mit Schallschutz zur Autobahn, im Süden Reiheneinfamilienhäuser.

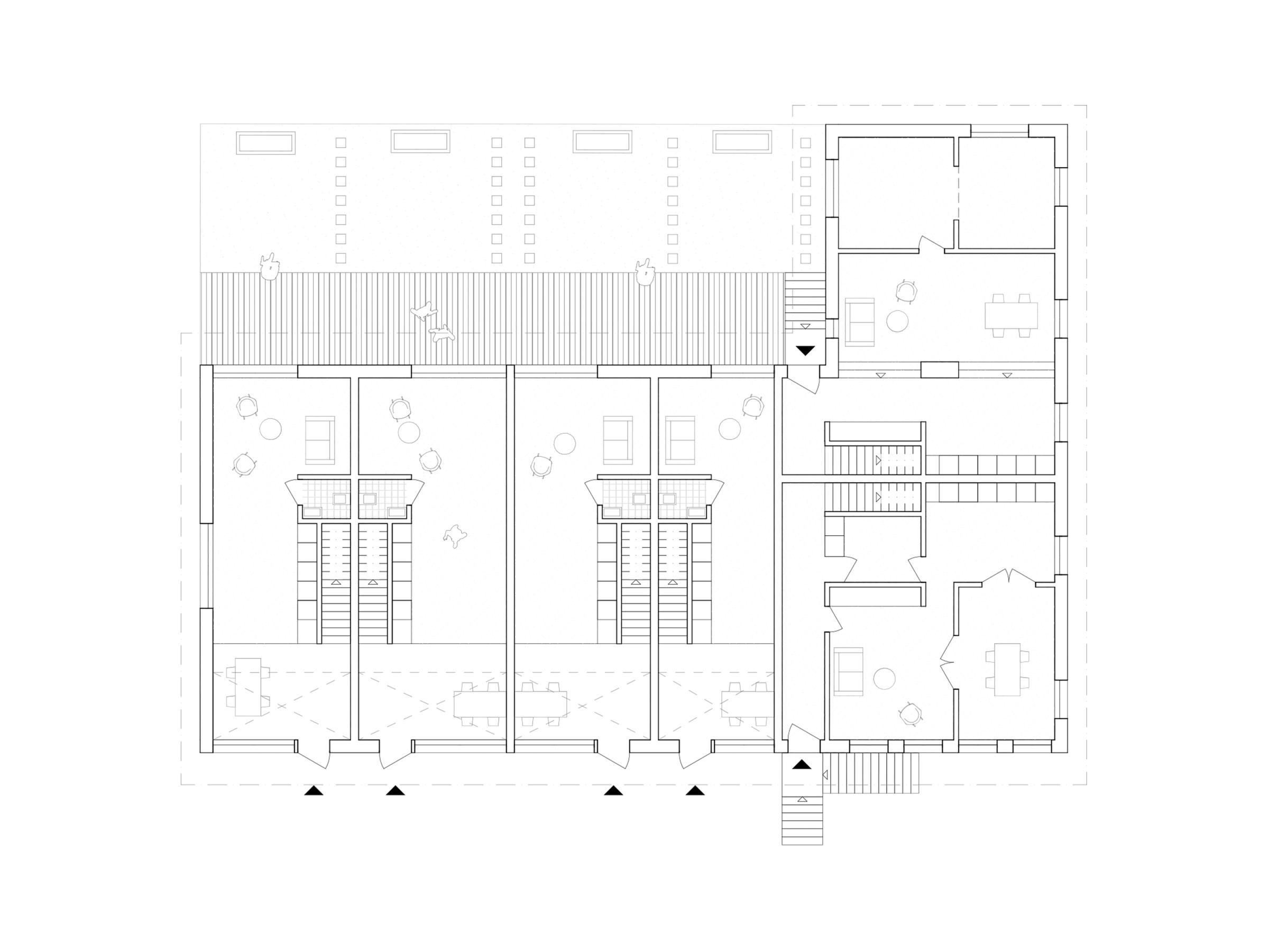
Alle Gebäude werden über den neu geschaffenen Hof erschlossen, der durch eine Tiefgarage unterkellert wird. Die Bepflanzung im Hof erfolgt entsprechend mit Töpfen und Hochbeeten, während die Umgebung landwirtschaftlich geprägt bleibt.